Initial Consultation

Brief Taking & Idea Generation

Set aside 15 mins for a telephone call and we will initiate a discussion for you to learn what you need to about us and more importantly, talk through your project for discovery of your kitchen goals and ambitions.
Despite advances in technology and App's being today's normal, we prefer to talk in person. We will prepare relevant items for you to view - examples of work, material samples, swatches, products and brochures to peruse. Then we arrange a convenient time to meet you at your home, bringing along these reference materials.

Allow us a couple of hours at your home, and at your convenience, to discuss your kitchen and adjacent room requirements in detail, while conducting a full survey and measurement of your space.
Only then can our designers really get to know you and your home for a fully detailed brief. We can discuss things that you've found to work and areas that don't. And review any other rooms you've already updated to the style you like.
Most important at this stage is to find an appropriate path forward. Sketching and drawing basic plans and shapes of room layout, along with furniture styles and solutions helps you understand what is possible. With lots of data to take away with us, the Concept Design stage begins.
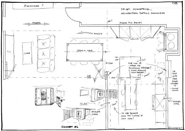
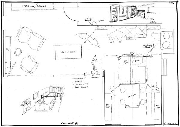
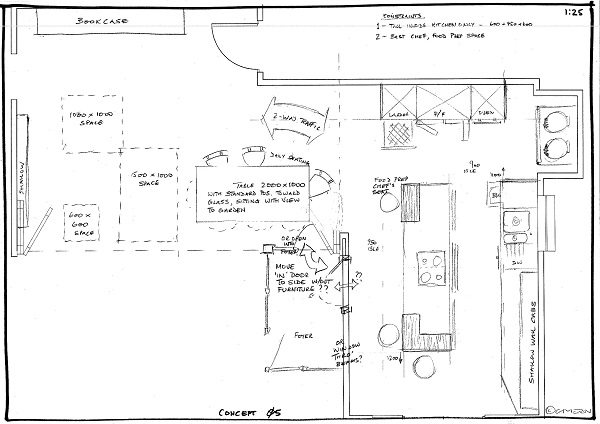
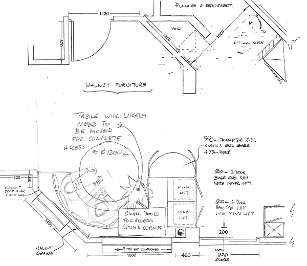
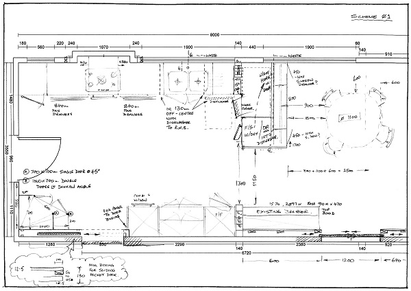
See below for quick format graphics produced alongside the client, ideally in less than 10 - 15 mins for high-speed communication.

kitchen sketch 01
kitchen sketch 02
kitchen sketch 03
kitchen sketch 04
kitchen sketch 05
kitchen sketch 06
kitchen sketch 07
kitchen sketch 08
kitchen sketch 09
kitchen sketch 10
kitchen sketch 11
kitchen sketch 12
kitchen sketch 13
kitchen sketch 14
kitchen sketch 15
kitchen sketch 16
kitchen sketch 17
kitchen sketch 18
kitchen sketch 19
kitchen sketch 20
kitchen sketch 21
kitchen sketch 22
kitchen sketch 23
kitchen sketch 24
kitchen sketch 01
kitchen sketch 10
kitchen sketch 27
kitchen sketch 28
kitchen sketch 29
kitchen sketch 30
kitchen sketch 31
kitchen sketch 32
kitchen sketch 33
kitchen sketch 34
kitchen sketch 35
kitchen sketch 36
kitchen sketch 37
kitchen sketch 38
kitchen sketch 39
kitchen sketch 40
kitchen sketch 41
Back to Process Main Page

KITCHEN Odyssey

Helping you visualize your new kitchen design quickly and easily. Making sure you have the biggest choice available by working with selected national and international quality manufacturers. Ensuring you are always in control of the process using latest technology and tools. And ensuring great service from an experienced team using best practice communications and documentation.

Contact Us

Covering Bedfordshire, Hertfordshire, Buckinghamshire, Northamptonshire, Cambridgeshire, and North London areas.

Links

For smaller kitchen works and cabinet door upgrades ...

For complete interior design full-scale projects for houses, appartments, offices, holiday get-aways, boats, planes and trains ...

For design of furniture and interior features for residential and commercial - eg. outside kitchens, client entertainment stations, etc ...

Quality

We work with the best suppliers including, Bosch, Falcon, Fisher & Paykel, Franke, Gaggenau, InSinkErator, KitchenAid, Neff, Perrin & Rowe, Rangemaster, SubZero and Wolf.

(links...)

Bosch Logo Falcon Logo Fisher Paykel Logo Franke Logo Gaggenau Logo ISE Logo KitchenAid Logo Neff Logo Perrin Rowe Logo Rangemaster Logo Subzero Logo Wolf Logo