Installation Process

Delivery, Installation & Checking

On the appointed date, with everything delivered, we set to installation. All preparation work will have been carried out and checked prior to delivery. This is where your dreams start to take shape. Having got this far, we do not rush the process. It may have taken you a year or more from inception and planning permission approval. This is not the stage of the project to try to recover timescales. We begin with careful execution and professional skills, fitting your quality furniture and components to transform into the vision we designed together. Measure twice, cut once, as preached by craftsmen for millennia.

As things progress we keep you updated and involved too. There are sometimes decision to be made that can not be anticipated at the beginning, such is the nature of building works. Being flexible and having the skills to think outside the box, is important on complex works. Once the cabinetry and furniture works are nearing completion, our trades final fix and connect your high-tech appliances, who make your room spring into life.

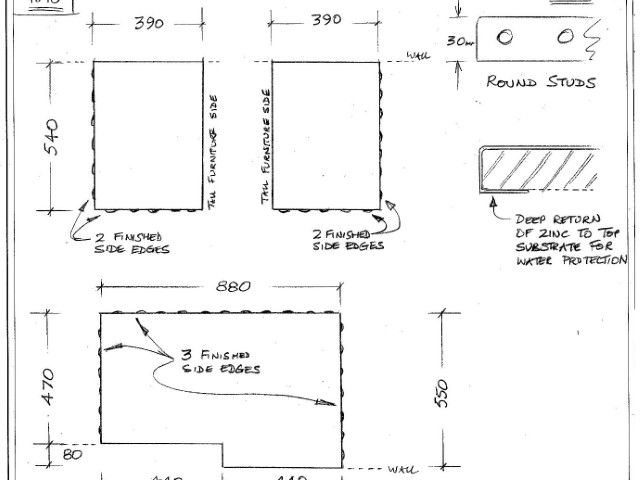
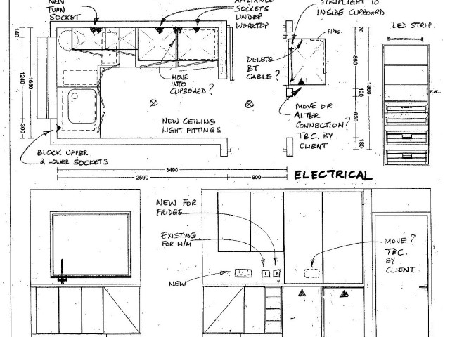
kitchen installation docs 01
kitchen installation docs 02
kitchen installation docs 03
kitchen installation docs 04
kitchen installation docs 05
kitchen installation docs 06
kitchen installation docs 07
kitchen installation docs 08
kitchen installation docs 09
kitchen installation docs 10
Back to Process Main Page

KITCHEN Odyssey

Helping you visualize your new kitchen design quickly and easily. Making sure you have the biggest choice available by working with selected national and international quality manufacturers. Ensuring you are always in control of the process using latest technology and tools. And ensuring great service from an experienced team using best practice communications and documentation.

Contact Us

Covering Bedfordshire, Hertfordshire, Buckinghamshire, Northamptonshire, Cambridgeshire, and North London areas.

Links

For smaller kitchen works and cabinet door upgrades ...

For complete interior design full-scale projects for houses, appartments, offices, holiday get-aways, boats, planes and trains ...

For design of furniture and interior features for residential and commercial - eg. outside kitchens, client entertainment stations, etc ...

Quality

We work with the best suppliers including, Bosch, Falcon, Fisher & Paykel, Franke, Gaggenau, InSinkErator, KitchenAid, Neff, Perrin & Rowe, Rangemaster, SubZero and Wolf.

(links...)

Bosch Logo Falcon Logo Fisher Paykel Logo Franke Logo Gaggenau Logo ISE Logo KitchenAid Logo Neff Logo Perrin Rowe Logo Rangemaster Logo Subzero Logo Wolf Logo